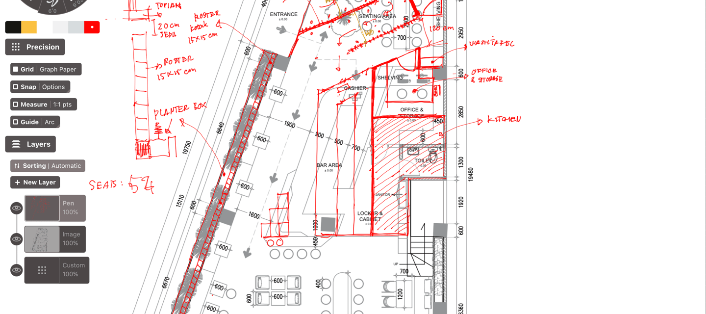
KOPILOGI
Markstudios Architect adalah firma arsitektur inovatif yang menghidupkan konsep Kopilogi dengan gaya Industrial Japanese. Fasad bangunan memukau dengan elemen roaster yang diberi sentuhan aksen kayu, menciptakan harmoni antara ketegasan dan kehangatan. Pintu masuk didesain unik menyerupai labirin, memberikan pengalaman menarik sejak pertama kali melangkah. Bar kopi di dalamnya menggunakan bahan krat bekas yang diolah dengan apik, mencerminkan komitmen Markstudios Architect terhadap keberlanjutan dan kreativitas tanpa batas.
Sebagai arsitek spesialis coffeeshop dan cafe, Markstudios Architect telah membangun reputasi melalui desain yang inovatif dan fungsional. Setiap proyek dikerjakan dengan detail yang cermat, menggabungkan estetika yang menarik dengan kenyamanan bagi pengunjung. Keahlian Markstudios Architect dalam menggabungkan estetika industri dengan kehalusan desain Jepang menciptakan ruang yang tidak hanya indah secara visual tetapi juga nyaman dan mengundang. Setiap desain mereka menceritakan kisah unik yang mencerminkan identitas dan filosofi klien, menjadikan setiap coffeeshop dan cafe hasil karya mereka sebagai tempat yang istimewa dan berkesan.




Hubungi kami untuk diskusi lebih lanjut tentang apa yang anda butuhkan untuk mengetahui seputar project arsitektur & interior anda.
Talk to us
Copyright © 2024 Markstudios Architect. All Rights Reserved.
All content, design, and materials on this website, including but not limited to text, graphics, logos, images, and code, are the property of Markstudios Architect and are protected by applicable intellectual property laws. Unauthorized use, reproduction, or distribution of any materials on this site is strictly prohibited without prior written permission from Markstudios Architect.
For inquiries or permissions, please contact us at: mail@markstudiosarchitect.com